
Ferro Structurae Gutters crucialorum pars aedificii tectorii INCILE systematis est. Praecipuum eorum munus est aquam pluvialem e tecto colligere, eam in fistulas verticales dirigere, ac deinde ad systematis INCILE foris exsolvere, quominus parietes directe exedant vel fundamenta bibula. Liweiyuan productum consilium et institutionem magni roboris et ponderis propriae sunt, ad lenis INCILE et eximium vetustatem praestandum.
Ferro Structurae Gutters crucialorum pars aedificii tectorii INCILE systematis est. Praecipuum eorum munus est aquam pluvialem e tecto colligere, eam in fistulas verticales dirigere, ac deinde ad systematis INCILE foris exsolvere, quominus parietes directe exedant vel fundamenta bibula. Liweiyuan productum consilium et institutionem magni roboris et ponderis propriae sunt, ad lenis INCILE et eximium vetustatem praestandum.
Liweiyuan Ferri Structura Gutter facta est ex corrosione materiae repugnantis et impacto repugnantis.
Productum nostrum calvanizatum est calidum, praebens repugnantiam optimam corrosionis, sumptus humiles, et longam vitam servitutis. Crassitudines 1.5-2.5 mm Available, maxime applicationibus idoneus est.
Factum ex ferro immaculato, hoc productum resistentiae corrosioni praebet et aptissimum est ad ambitus maritimos vel humidos. In crassitudinibus 1.0-2.0 mm praesto est, pluris sed longam vitam servitutis praebet.
Nostra producta chalybeis colorata nititur ferro galvanizato, obductis vestis tempestatibus resistentibus, ut polyester vel fluorocarbon, utriusque corrosionis resistentia et effectus decorativi. In crassitudinibus 1.2-2.0 mm praesto sunt, apta sunt aedificiis quae altam appellationem aestheticam requirunt.
Forma structuris Ferri Gutter structurae aptari debet ad fastigium fastigium et ad designandum culmina. Typi communes U informibus et V informibus includunt. Processus institutionis talis est:
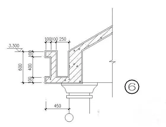
Nostri Gutters Chalybeis structurae angulum chalybem canalem uncis utuntur, ut eas ad trabes vel resupinarum culmina ferreas structurae muniant. Spatium bracket 600-1000mm est ut etiam distributio accentus per canalem.
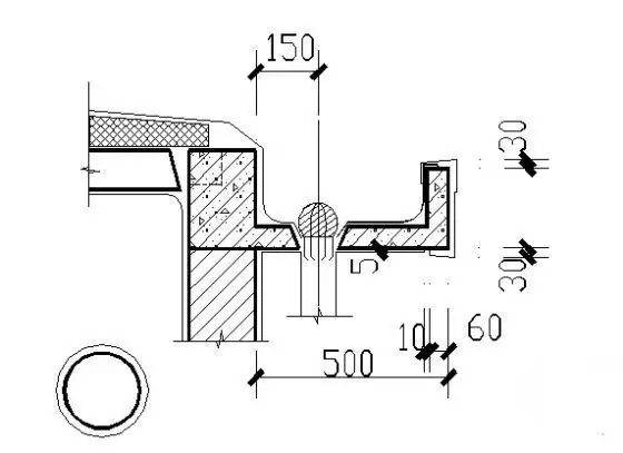
Canales perfecti sunt prae magnitudine et connexis in-site utentes connexiones vel glutino. Sealant requiritur ad confluentes inter canalem et tectum tegimentum.
Possumus installare coruscum supra tectum ornatam. Fistula ima conlocari debet sub tecto tegumenta et obsignata obsignatione. Exhaurire foramina in fundo stillicidii praeberi debent, praesertim pro connexione ad surgunt aquae pluviae.
Nostrum Ferro Gutters fabricandi processum comprehendit secans secundum dimensiones tractus, curvus, pictura, inspectionem producti, packaging, et naves. Liweiyuan chalybeum compages canales designantur et constituuntur ut corrosio resistentia, lenis INCILE, et durabilitas, efficax adficio.