
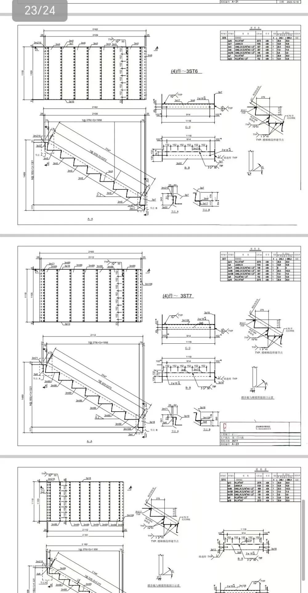
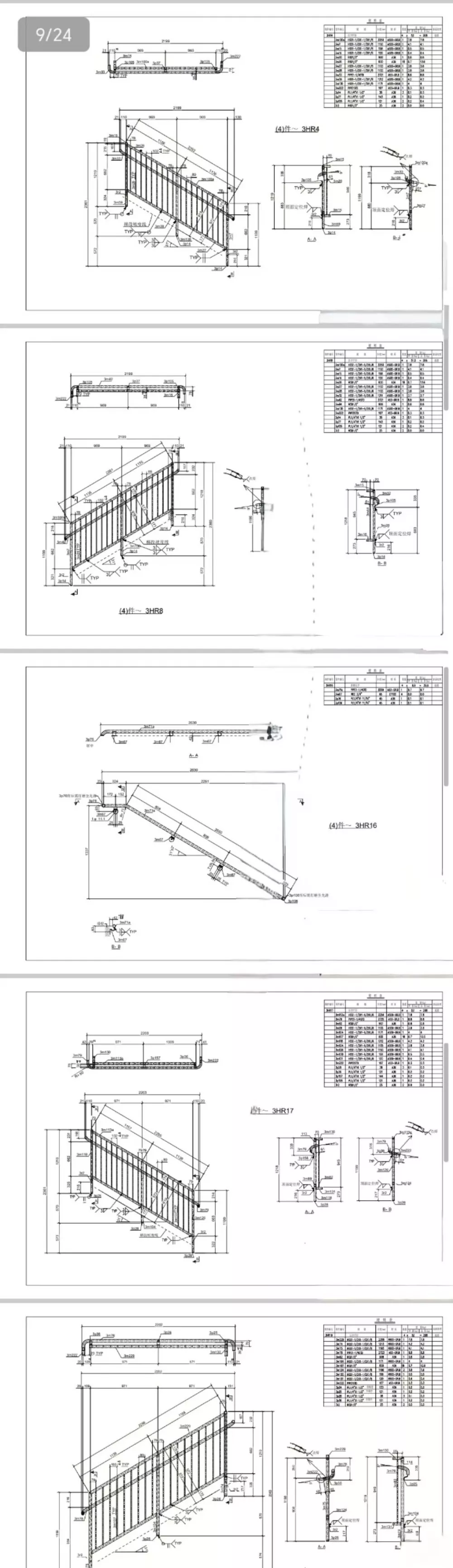
Liweiyuan chalybeis structura scalae principaliter fiunt ex ferro et ferro laminae canali, technicis secandis et glutino adhibitis. Nostra producta intendunt minima puncta subsidia et capacitatem altam oneris afferentes. Graduum varios stylos offerimus et eos etiam ad necessitates tuas customizare possumus. Sentire liberum tabernam!
Liweiyuan chalybeis structura scalae principaliter fiunt ex ferro et ferro laminae canali, technicis secandis et glutino adhibitis. Nostra producta intendunt minima puncta subsidia et capacitatem altam oneris afferentes. Graduum varios stylos offerimus et eos etiam ad necessitates tuas customizare possumus. Sentire liberum tabernam!



Scalae structurae ferro Liweiyuan maxime utuntur in aedificiis altis, plantis industrialibus et aliis agris. Producti nostri facti sunt rudis materiae GENERALIS, uterque processus stricte operatur, et singuli fructus inspectionem qualitatem sustinebunt antequam tibi tradetur.
1. Productum nostrum parum relative occupat spatium ac destinari potest ut spatio tuo aptare possit, id facile ad institutionem facit.
2. Res oeconomica et sumptus-efficax est. Gradibus concretis comparati, scalae nostrae citius et facilius sunt ad instituendum et construendum, minus operis formationem requirunt, et dimidium tantum constant.
3. Varia consilia praebemus ad aptam ambitum ac stilum desideratum.
4. practici sumus. Steel structura scalae calcantis fieri potest ex materia ut scutellas ferreas et crates ferreas aptatas, et nativus esse potest ad diversa exemplaria negotiationis apta, ut facilius scalas ascendat et descendat.

5. Scalae nostrae sunt customizabiles, featuras corrosio-repugnantes curationes, sicut calidum intingere movere, spargere plasticum, et pingere. Possunt etiam in singulis Lorem necessitatibus occurrere. Offerimus varias materias, inter A36, Q235B, et Q355B.


Liweiyuan officina metallatoria in Sinis est professio, instructa ad machinas metallandas provectas, technicas turmas valde idoneos, technicas professionales. Singularis tactus adde ad aedificationem tuam eligendo scalas ferreas Liweiyuan!